100) ? false : true; navIsShown = (window.pageYOffset > viewportHeight) ? true : false; triggerTransitions = window.pageYOffset > (viewportHeight / 2) ? true : false; if (navIsOpen && !atTop && !navIsShown) navIsOpen = false; ">
Toggle Nav
Images
Videos
Floor Plans
Map
Scroll to Content
11709 County Rd 38, Winchester, ON K0C 2K0
Images
Show more
Slideshow
Photo Grid
Hide
Previous
Next
Videos
Content Coming Soon
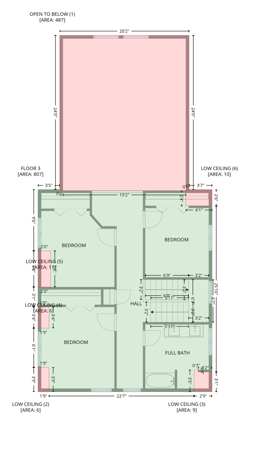
Floor Plans
Slideshow
Photo Grid
Hide
Previous
Next