100) ? false : true; navIsShown = (window.pageYOffset > viewportHeight) ? true : false; triggerTransitions = window.pageYOffset > (viewportHeight / 2) ? true : false; if (navIsOpen && !atTop && !navIsShown) navIsOpen = false; ">
Toggle Nav
Images
Videos
Floor Plans
Map
Scroll to Content
53 Childerhose Crescent, Brantford, ON N3P 1Z7
Images
Show more
Slideshow
Photo Grid
Hide
Previous
Next
Videos
Video #1 - 53 Childerhose Crescent, Brantford, ON N3P 1Z7
Video #1 - 53 Childerhose Crescent, Brantford, ON N3P 1Z7 (2)
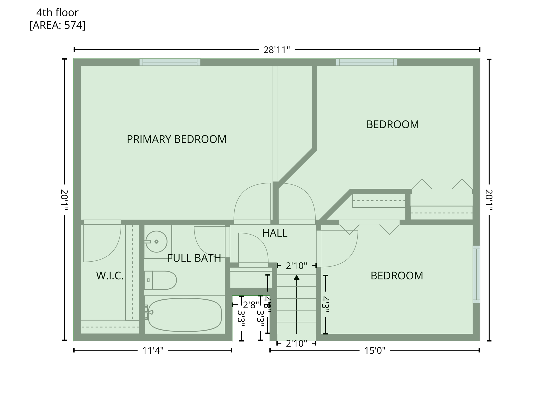
Floor Plans
Slideshow
Photo Grid
Hide
Previous
Next