100) ? false : true; navIsShown = (window.pageYOffset > viewportHeight) ? true : false; triggerTransitions = window.pageYOffset > (viewportHeight / 2) ? true : false; if (navIsOpen && !atTop && !navIsShown) navIsOpen = false; ">
Toggle Nav
Images
Videos
Floor Plans
Map
Scroll to Content
668 Tomahawk Crescent, Ancaster, ON L9G 3R2
Images
Show more
Slideshow
Photo Grid
Hide
Previous
Next
Videos
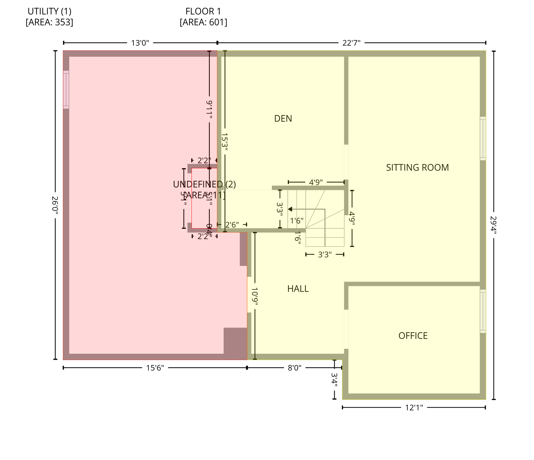
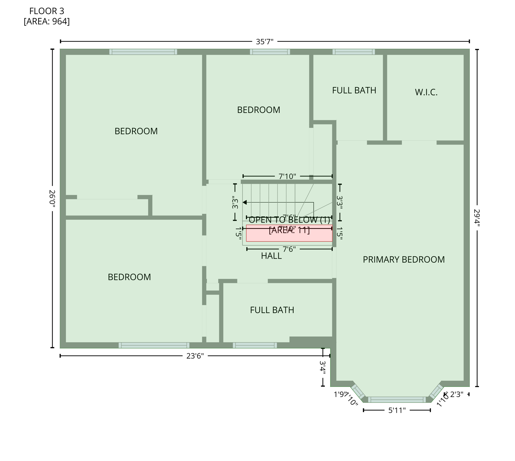
Floor Plans
Slideshow
Photo Grid
Hide
Previous
Next